Lee Park II – A Third Luxury Townhome Development in Park Avenue’s T-Zone
Summary
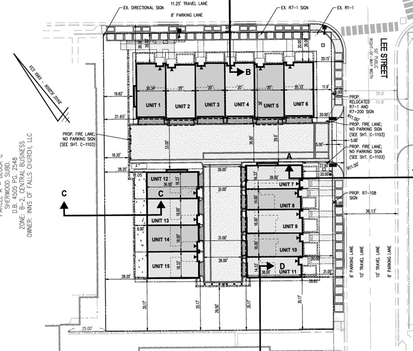
Madison Homes submitted plans for 15 townhomes on the corner of Park Avenue and N Lee Street. The new development, known as Lee Park II, will be similar to the Lee Park townhomes being constructed across the street and priced between $1million and $1.8 million.
The placement of the townhomes is affected by stormwater flows through the side and back of the property and by a restrictive covenant that requires the buildings to be set back 20 feet from the front lot line, not the curb.
This is the first project to be approved by the Planning Director as the designated agent under a new state law rather than the Planning Commission, which previously had the authority to approve site plans. The shortened 40-day response window allowed for one public review for recommendations from the Planning Commission. Staff were clearly rushed as they adjusted to the new process, leading to inconsistencies and a lack of clarity reflected in their written responses to the applicant.
The T-Zone ordinance revision, which was initially justified as necessary to produce more affordable housing in the City, has thus far led to the construction of 47 luxury townhomes in the first two years, all built by Madison Homes.
A new, faster approval process dictated by state law
The development application from Madison Homes is the first to be approved by the City’s Planning Director as the designated agent, according to the new state law that removed that authority from the Planning Commission. Under this new process, the Planning Commission can hold one public meeting to review and make their recommendations within the 40-day review period set by law for the first review. Beyond that, the Commission will no longer have any involvement. The City has 30 days to complete a second review.
Planning Commissioner Sharon Friedlander noted that the staff comments seemed to be conflicting, raising questions for internal resolution rather than for the applicant. Planning Director Matt Mattauszek admitted that, with the shortened review period, there had not been time for staff meetings to resolve questions, adding, “Had we not had to operate within that 40-day window, usually there [would be] internal and external coordination meetings to resolve those things.”
The new process also limits board reviews to the Architectural Review Board (ARB). In particular, the Urban Forestry Commission was excluded from reviewing Madison Homes’ tree canopy plans.
The Lee Park II application was submitted on December 10, 2025, and presented at the Planning Commission meeting on January 7, 2025. A response to the applicant’s site plan application is required from the Planning Director by January 19.
A separate request for subdivision of the site into 15 townhouse lots and a lot for the common area remains under the authority of the Planning Commission. A final meeting will be held on February 4, 2026, to approve this request.
Location of Lee Park II in the T-Zone

The site occupies three lots – 701, 703 and 705 Park Avenue. The corner lot is Case Design and the other two are currently Econize Closet offices. Econize owner, Noel Sweeney, received approval to build a new office building on the corner of Broad Street and S Spring Street last spring. [Read the April 23, 2025, Pulse post for details.]
All three lots are zoned T-1, transition zone, affected by the T-Zone ordinance that was revised in 2023, despite considerable opposition from City residents. Supporters contended changes to transition zones would provide affordable and missing middle housing between $800,000 and $1 million, while those opposed to the new ordinance argued unsuccessfully for increased setbacks and lower building heights to truly provide for more affordable housing and maintain the character of the tree-lined boulevard.
Thus far, the luxury townhomes built have been priced between $1 million and $1.8 million and have resulted in the loss of several mature trees in flood-prone areas. It remains to be seen if the replacement street trees will be able to reach their full potential with less space and access to sunlight.
The Lee Park II site plan is subject to a setback covenant
Madison Homes proposed to build 15 townhomes on this 0.71-acre site (31,071 sq ft) in a similar layout to the Lee Park development across the street. This is slightly larger than the 0.69-acre Lee Park site across the street that Madison Homes purchased for $8.25 million.
There are two major factors that affected the developer’s placement of the buildings on its latest site. A deed covenant requires that the buildings be 20 feet from the “front line,” interpreted as the front lot line. This is more restrictive than the City’s T-Zone code and resulted in the buildings being set back more than 25 feet from the curb of Park Avenue and N Lee Street, at least 5 feet further than the other two recent Park Avenue townhome developments.

The second factor affecting this project is the stormwater flow, to be discussed later in this post. This flow required a wider setback from neighboring properties to allow stormwater to pass. Taken together, these factors shrank the buildable area, allowing for no more than 15 units.
The table below shows how this project conforms to the T-Zone code. Madison Homes requested no variances or waivers, thus simplifying the “by right” approval process.

Highlights
- Six 20-foot-wide units (1 to 6) on Park Avenue have 2-car garages and elevators, similar to the ones in Lee Park priced at $1.8 million. Unit depth is 38 feet.
- N Lee units 7 to 11 are 38 feet deep and either 14-or 16 feet wide. “Alley” units 12 to15 are 36 feet deep and 18 feet wide.
- Units range in floor area from 1,197 sq ft for alley units to 1,769 sq ft for the Park Avenue units. The living space is on three levels for the alley units andfour levels for the rest. Units each have two to three bedrooms and three to four bathrooms.
- The architectural design is similar to the Lee Park and Oak Park townhomes. Units do not have back doors. Units 1 to 11 have rear garage doors. Alley units, 12 to 15, have front doors next to garage doors.
- A homeowners association (HOA) will be established for this development, and homeowners will use a private trash collection service.
Stormwater challenges

As highlighted in the Pulse post, Stormwater in the City: There’s Flooding in our Future! , April 9, 2025, this area of Falls Church has experienced flooding in the last 20 years, and the City’s stormwater infrastructure has not been upgraded to resolve the issue. Engineers have determined that the stormwater system here cannot adequately handle a 10-year storm event. Remediating this section of the stormwater system would be a major capital expense for the City.
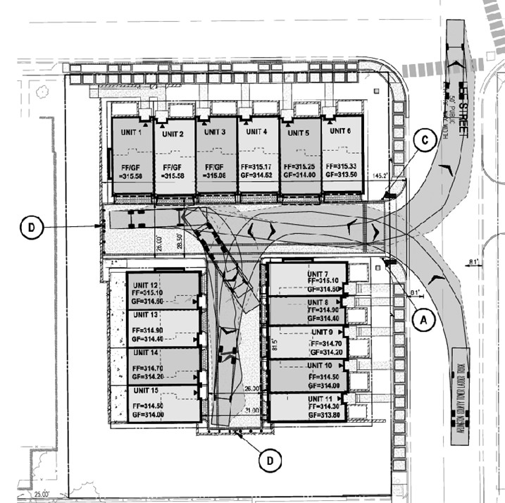
Madison Homes Vice President Andrew Rosenberger explained to the Planning Commission that the Lee Park II site has an “overland relief issue.” He said there is a stormwater inlet on Park Avenue near the Hilton Gardens garage that is undercapacity despite its large size. In an extreme storm event, that inlet is known to have overflowed so that stormwater flows through the garage and onto the Lee Park II site making its way to N Lee Street and down to Broad Street.


Working with engineering consultants Kimley Horn, the developers proposed to surround the townhomes on two sides with a retaining wall that will be a maximum 4 feet tall, raising the level of the buildings. The land beyond the wall will be kept at the current ground level to allow floodwaters to pass through, thus maintaining the existing flood risk for neighboring properties.
The existing impervious area covers 42% of the lot. The development will increase the impervious area by 6,365 sq ft, an additional 20% of the lot, to 62%. As in the Oak Park and Lee Park developments, bio-retention planter boxes will be used to reduce the peak flow rate so that it does not exceed the current rate. The loss of several mature trees will also have an impact on stormwater flows into this section of the City’s pipes.
From 50% to 12% tree canopy

This site currently has seven mature trees with trunk diameters from 20 to 36 inches. Red maples, pin oaks, and ash are the seven biggest, followed by nine trees with trunks between 10 and 20 inches – oak, catalpa, maple, ash, spruce, and holly. A grand old pin oak with a 36-inch trunk sits in the back of the site, its canopy alone is estimated at 2,000 sq ft, over 6% of the lot. Four large red maples guard each corner of the shared parking lot. The Pulse used i-Tree Canopy to estimate the existing tree canopy for the site at 54%+/- 5%.

This site will be cleared and landscaped to fulfill the minimum 10% tree canopy required by the code. This is a formulaic calculation – plant an elm, get 175 sq ft canopy credits based on 10-year canopy size standards. The Urban Forestry Commission has identified problems with past proposals that placed trees too close together or in planting conditions that were unsuitable for the species. This threatens their long-term survival and prevents the trees from maturing to their full canopy. Furthermore, the developers currently receive canopy credits for street trees that are outside their lots, further reducing their need to provide green space onsite.
The Pulse spotted an error in the canopy coverage used for the London Planetree canopy. Accounting for this error raises the proposed landscape canopy calculation to 3,700 sq ft or 12% of the site area. The proposed tree plantings and their 10-year coverages are shown in the figure below. Trees with 175 sq ft canopies are large and need to be planted at least 15 feet away from buildings. The basswoods are 10 feet away from Unit 6, while the elms, known for their spreading branches, are located close to the retaining wall and barely 15 feet from the buildings. This landscape plan was reviewed by the City arborist but not the Urban Forestry Commission.
Sanitary sewer
The City is still negotiating with Fairfax County to increase the City’s sewage processing capacity due to the addition of these and other new housing units in the City. The cost of expanding this capacity is described in our sewer posts.
Firetruck access
The diagram modelling a 46-foot ladder truck getting access to the alley units shows a tight fit.

Planning Commission discussion
Commissioner Brent Krasner opened with a commentary on the impact of the revised T-Zone ordinance. “I think we should rename the T-Zones, the townhouse zone. Now we have a third one in three blocks. So, any pretense anyone on this Commission or anywhere in the City had that the T-Zones might yield another type of use other than townhouses, I hope they’ve been disabused of that notion, given the current economic climate in the market in Northern Virginia. When we make townhouses by right, we should 100% expect that the next day, we will get proposals for them.”
Mr. Krasner was also concerned about the “sameness” of the architecture across the three townhome projects that are within blocks of each other. He lamented the loss of the “organic nature that gives Falls Church its identity.” Ms. Friedlander commented that she was okay with the consistency with Lee Park across the road. Mr. Krasner asked if delivery vehicles would be able to enter the complex or would they park on the streets blocking traffic. He speculated that the residents would more likely park on the street than in their garages.

Commissioner Tim Stevens asked for bike racks to encourage bike use as he was concerned that there would be more congestion on Park Avenue. There are no visitor parking spots on site.
Commissioner Phil Duncan, who voted for the T-Zone code as a City Council member, suggested that staff include information about the increase in City tax revenues from these townhomes for the community to see. He did not mention capturing the costs of upgrading City infrastructure for new development. [See Pulse post Single-Family Homeowners Bear the Cost of the City’s Growth, December 3, 2025.]
No longer having approval authority, the Planning Commission submitted the following recommendations to the applicant:
- Plant evergreen vegetation along the Hilton Garden garage to provide a year-round green screen.
- Consider additional programming for open space adjacent to the Kensington, such as a walking path for residents.
- Install a bike rack along Park Avenue for visitors.





Unless indicated otherwise, technical drawings are taken from the Lee Park II site plan and the January 7, 2026, meeting presentation.
References
- Planning Commission meeting, January 7, 2026. This official video will not display properly on a small screen as it includes the agenda.
- Planning Commission meeting, January 7, 2026. YouTube video.
- Lee Park II Site Plan, December 10, 2025.
- Lee Park II Staff Report, January 7, 2026. Planning Commission meeting.
- Staff DRC Comments Letter-Lee Park II Site Plan 12-19-2025
- Compiled Staff DRC Review Comments 12-24-25
